Steenaart House
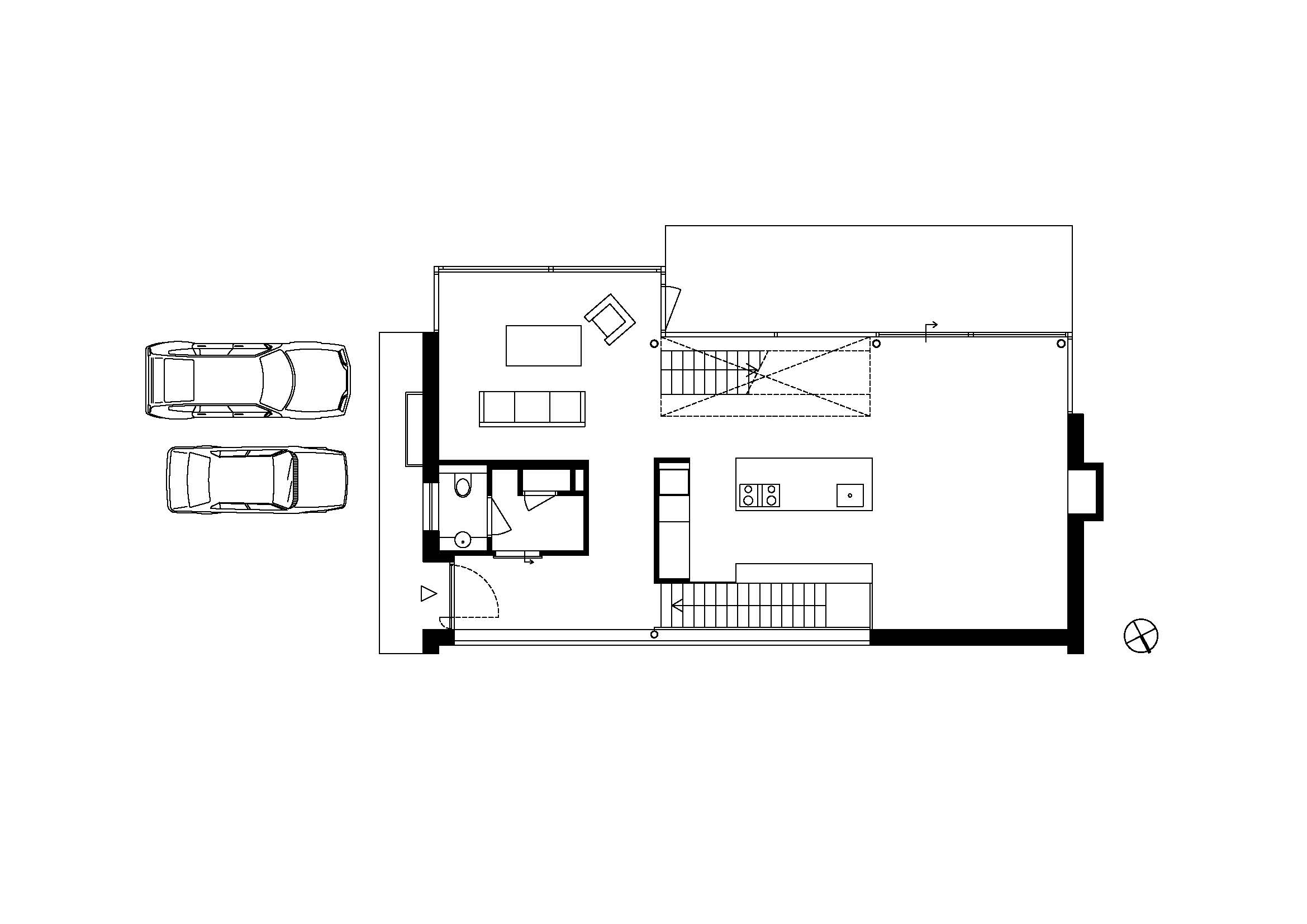
Lichtinval, privacy en de relatie tussen het huis en de tuin zijn leidend bij het ontwerp. Het huis ligt op een smal hoekkavel dat aan de voorkant grenst aan de Larikslaan, de centrale, groene as van het eiland. Aan zuidzijde grenst de tuin aan een rustige zijstraat. Deze gevel is transparant vormgegeven om zonlicht toe te laten en om het huis te openen naar de tuin. Het invallende zonlicht wordt getemperd door het balkon, de buitenjaloezieen en de houten lamellen. De ruimte's op begane grond lopen in elkaar en staan in open verbinding met het sousterrain. Het sousterrain is half ingegraven in de tuin, en krijgt daglicht door een raamstrook over de hele lengte van de Noordgevel. Op de begane grond is de Noordgevel gesloten, op twee smalle raamstroken na. De raamstroken lopen over de hele lengte van het huis op vloerniveau en vlak onder het plafond. Door de smalle raamstroken is de tuin en de lucht aan die zijde zichtbaar, maar blijft inkijk beperkt.
project:
Een huis op Rieteiland Oost, IJburg Amsterdam
opdrachtgever:
Prive
aannemer:
Gijs en Van Cleef
jaar:
2020
team:
Jan van Erven Dorens, Jonathan Reyes, Ned Balev
fotografie:
Michel Claus
afmetingen:
Bruto vloeroppervlak 330 m2
Een huis op Rieteiland Oost, IJburg Amsterdam
opdrachtgever:
Prive
aannemer:
Gijs en Van Cleef
jaar:
2020
team:
Jan van Erven Dorens, Jonathan Reyes, Ned Balev
fotografie:
Michel Claus
afmetingen:
Bruto vloeroppervlak 330 m2














