TAM HOUSE
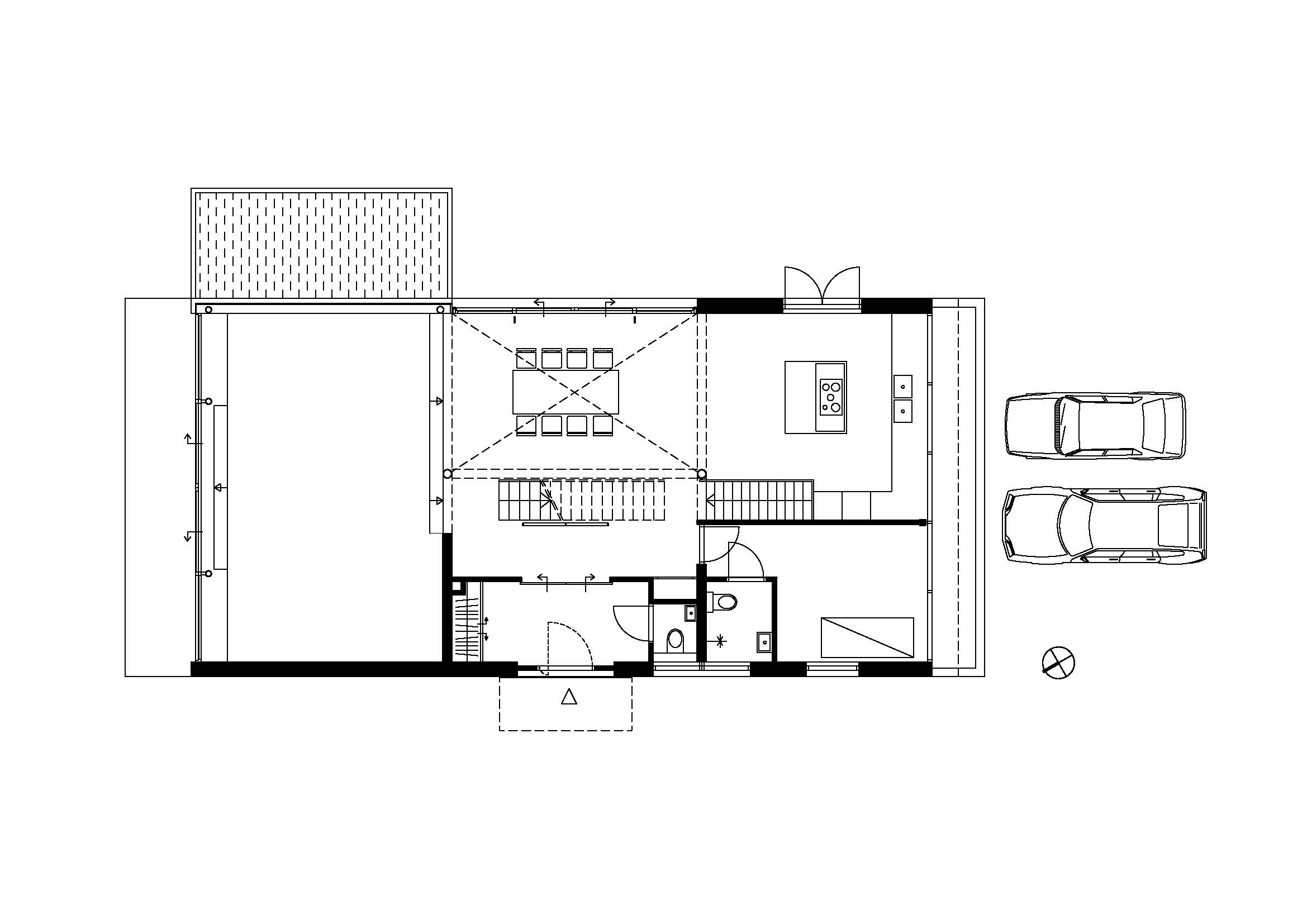
Een huis voor een gezin met drie kinderen. Een ruime eetkamer en woonkamer is nodig voor het ontvangen van een uitgebreide familie.  Op de begane grond lopen keuken, eetkamer en woonkamer in elkaar over. De woonkamer is twee treden verdiept aangelegd. Door het niveauverschil is een verdeling tussen de ruimte's gemaakt zonder dat deuren nodig zijn. Een laag raam in de woonkamer geeft zicht op een karpervijver en op de omgeving. Vanuit zittende positie is er een weids uitzicht door dit lage raam terwijl de muur boven het raam zorgt voor beslotenheid. Ter plaatse van de patio in het midden dringt de tuin het huis binnen. Het gevelmetselwerk is naar binnen doorgezet om het gevoel te versterken. Lamellen filteren het licht en zorgen voor privacy. De kelder van 100m2 is een verlengstuk van de woonruimte en is via een ruim trapgat verbonden met de patio.  Een koekoek over de volle breedte van de straatgevel zorgt voor daglicht in de kelder. 
	
project:
Een huis op Rieteiland Oost, IJburg, Amsterdam
opdrachtgever:
Prive
aannemer:
Visser & Mol
jaar:
2012
team:
Jan van Erven Dorens, Jurgis Dagelis
fotografie:
Michel Claus, Dorens Architects
afmetingen:
Bruto vloeroppervlak 400 m2
Een huis op Rieteiland Oost, IJburg, Amsterdam
opdrachtgever:
Prive
aannemer:
Visser & Mol
jaar:
2012
team:
Jan van Erven Dorens, Jurgis Dagelis
fotografie:
Michel Claus, Dorens Architects
afmetingen:
Bruto vloeroppervlak 400 m2

















