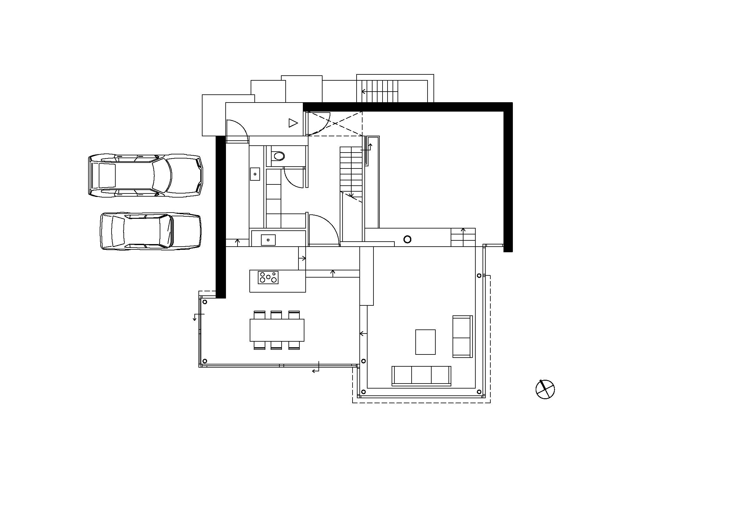
De huizen op Rieteiland Oost zijn vrijstaand maar staan dicht op elkaar. Lichtinval, uitzicht, pricacy en de overgang van binnen naar buiten zijn leidend bij het ontwerp. Huis en tuin zijn in één beweging ontworpen. Op begane grond zijn drie verschillende niveau's gemaakt. De verschillende ruimte's op begane grond lopen in elkaar over en worden losjes van elkaar gescheiden door de niveauverschillen. De entree en het atelier liggen twee treden hoger dan de tuin. De keuken ligt op hetzelfde niveau als de tuin. Via een drie meter brede schuifdeur loopt de tegelvloer van de keuken over in de tegelvloer van de tuin. De zitkamer is twee treden verzonken ten opzichte van de tuin en krijgt hiermee een intieme sfeer. Het lage raam van de zitkamer geeft uitzicht op de tuin, maar laat geen inkijk toe. Het sousterrain heeft een aparte toegang en wordt als kantoor aan huis gebruikt. Het sousterrain is half ingegraven. Het glas is op veel plaatsen met siliconenkit gemonteerd. Door de minimalistische detaillering van het glas is de lichtinval maximaal en wordt de sculpturale werking van de gestucte gevelvlakken geaccentueerd.
project:
Een huis op Rieteiland Oost, IJburg Amsterdam
opdrachtgever:
Prive
aannemer:
Hooijberg BV
jaar:
2020
team:
Jan van Erven Dorens, Jonathan Reyes, Ned Balev
landschap:
Gerard Jol
fotografie:
Michel Claus
afmetingen:
Bruto vloeroppervlak 300 m2
Een huis op Rieteiland Oost, IJburg Amsterdam
opdrachtgever:
Prive
aannemer:
Hooijberg BV
jaar:
2020
team:
Jan van Erven Dorens, Jonathan Reyes, Ned Balev
landschap:
Gerard Jol
fotografie:
Michel Claus
afmetingen:
Bruto vloeroppervlak 300 m2














